Get new listings emailed daily! JOIN SIGN IN
Ruth Ann Wood
CRS | ruthannwood@msn.com
REALTOR®
(941) 586-7777
Facebook Icon 
$135,000

232 Glenwood Drive Lake Wales, FL 33898 Residential - Mobile Home Active

  • 232 Glenwood Drive, Lake Wales, FL 33898 Main Photo

38 Total Photos [Click to View All]

Description

Welcome to 232 Glenwood Dr, located in the desirable Twin Fountains 55+ land owned community. This very well maintained and updated 2 bedroom, 2 bath home offers comfortable living with thoughtful spaces throughout. The home features an eat-in kitchen plus a separate dining room, providing flexibility for both casual meals and entertaining. A bright Florida room adds additional living space, perfect for relaxing or enjoying Florida's sunshine year round. Additional highlights include a brand new roof and updated plumbing (March 2026). There is a covered carport, covered patio, and a storage room for extra convenience. Twin Fountains offers affordable, low maintenance living with a low monthly HOA of just $180, which includes water, sewer, lawn maintenance, cable, and internet, along with access to excellent community amenities such as a heated pool, clubhouse, shuffleboard courts, and storage area (subject to availability).Conveniently located near shopping, medical facilities, and restaurants, this community provides the perfect balance of peaceful living with easy access to everyday conveniences. Schedule your private showing today and experience all that Twin Fountains has to offer.

Property Highlights

Property Type: Residential - Mobile Home
Cooling: Central Air
Heating: Heat Recovery Unit
Lot Size: 0.11 Acres
Roof Type: Shingle
Stories: 1.0
Taxes: $1,873
Year Built: 1995

General Information

Bedrooms: 2
Bathrooms: 2 Full
Sqft: 912
County: Polk
Subdivision: TWIN FOUNTAINS INC A CONDO MHP
Listed By:
Patricia De Graaff, LLC RE/MAX HERITAGE PROFESSIONALS 863-256-2188

Amenities

Built-in Features
Ceiling Fans(s)
Kitchen/Family Room Combo
Thermostat
Walk-In Closet(s)
Window Treatments
Lighting
Sliding Doors
Storage

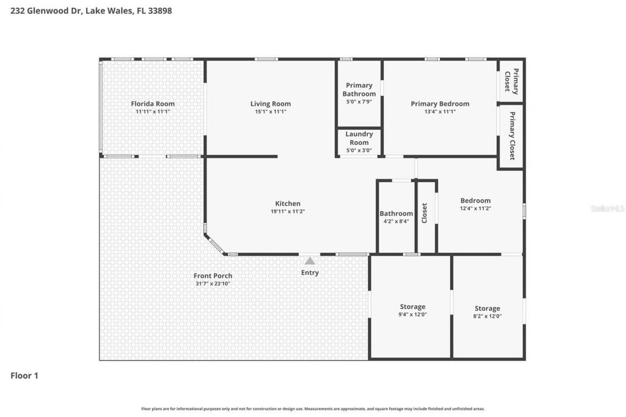
Room Information

Living Room: 15x11
Kitchen: 19x11
Florida Room: 11x11
Primary Bedroom: 13x11
Bedroom 2: 12x11
Laundry: 5x7

Property Features

Additional Rooms: Florida Room
Appliances: Dishwasher, Dryer, Microwave, Range, Refrigerator, Washer
Association Amenities: Cable TV, Clubhouse, Pool, Recreation Facilities, Shuffleboard Court
Community Features: Buyer Approval Required, Clubhouse, Deed Restrictions, Golf Carts OK
Days on Site: 2
Directions: Take SR 540E, cross over HWY-27 on Waverly Rd, turn L onto Scenic hwy (SR17), then turn L onto Twin Fountains Dr, slightly left onto Candlewood Dr, R onto Treasure Valley Loop, L onto Glenwood Dr, property is on L.
Exterior: Vinyl Siding
Flood Zone Code: X
Flooring: Carpet, Luxury Vinyl
Foundation: Crawlspace
HOA Fee: 180/ Monthly
HOA Y/N: Yes
Home Warranty Y/N: No
Listing Terms: Cash, Conventional, VA Loan
Lot: In County, Paved
Lot Dimensions: 0.11
Number of Pets: 2
Other Equipment: Irrigation Equipment
Ownership: Condominium
Parking: Driveway
Parking Notes: Driveway
Patio/Porch: Covered, Front Porch, Screened
Pets Allowed: Number Limit, Size Limit, Yes
Pets Restrictions: 2 pets of max 25lbs each. Outside, pets must be kept on a leash and picked up after.
Pets Size: Small (16-35 Lbs.)
Pets Weight (Max): 25
Property Attached Y/N: No
Property Sub-Type: Manufactured Home
Security: Smoke Detector(s)
Senior Community: Yes
Sewer: Private Sewer
Showing Instructions: Appointment Only, Combination Lock Box, See Remarks, ShowingTime
Special Sale Provisions: None
Utilities: BB/HS Internet Available, Cable Available, Electricity Connected, Sewer Connected, Water Connected
Vegetation: Mature Landscaping
Water: Private
Water Access Y/N: No
Windows: Window Treatments
Zoning: RES
$135,000
2beds
2.0baths
912sqft
New to the Market Active
BEDS2 BATHS2 full SQUARE FEET912 MLS#S5145451
STATUSActive PROPERTY TYPEResidential - Mobile Home SUBDIVISIONTWIN FOUNTAINS INC A CONDO MHP

Get in Touch

Contact an agent to learn more about

232 Glenwood Drive, Lake Wales, FL 33898.

Contact Form

Preferred Communication Method:

Estimate Your Payment

Estimated Payment

$ 650.79 per month $455.33 Principal & Interest $156.08 Property Tax $39.38 Homeowner's Insurance

Change Payment Information

%
years/fixed
yearly
yearly (est.)
(Payments are an estimate and may vary by lender)
Disclaimer: All information deemed reliable but not guaranteed. All properties are subject to prior sale, change or withdrawal. Neither listing broker(s) or information provider(s) shall be responsible for any typographical errors, misinformation, misprints and shall be held totally harmless. Listing(s) information is provided for consumers personal, non-commercial use and may not be used for any purpose other than to identify prospective properties consumers may be interested in purchasing. Information on this site was last updated 03/12/2026. The listing information on this page last changed on 03/12/2026. The data relating to real estate for sale on this website comes in part from the Internet Data Exchange program of Delta Media Group MLS (last updated Thu 03/12/2026 12:00:00 AM EST) or Stellar MLS (last updated Wed 03/11/2026 11:44:08 PM EST). Real estate listings held by brokerage firms other than Wagner Realty may be marked with the Internet Data Exchange logo and detailed information about those properties will include the name of the listing broker(s) when required by the MLS. All rights reserved.

Listing data and photos distributed by MLSGRID
Member Participants (and their affiliated licensees, if applicable) shall indicate on their websites that IDX information is provided exclusively for consumers’ personal non-commercial use, that it may not be used for any purpose other than to identify prospective properties consumers may be interested in purchasing, that the data is deemed reliable but is not guaranteed by MLS GRID, and that the use of the MLS GRID Data may be subject to an end user license agreement prescribed by the Member Participant’s applicable MLS if any and as amended from time to time. MLS GRID may, at its discretion, require use of other disclaimers as necessary to protect Member Participant, and/or their MLS from liability.
Based on information submitted to the MLS GRID. All data is obtained from various sources and may not have been verified by broker or MLS GRID. Supplied Open House Information is subject to change without notice. All information should be independently reviewed and verified for accuracy. Properties may or may not be listed by the office/agent presenting the information.



Privacy Policy / DMCA Notice / ADA Accessibility

Login to My Homefinder

Pixel